Loading...

Doppelhaushäfte in schöner Randlage ---reserviert---

01 Pulsnitz
Kaufpreis: 258.000 €

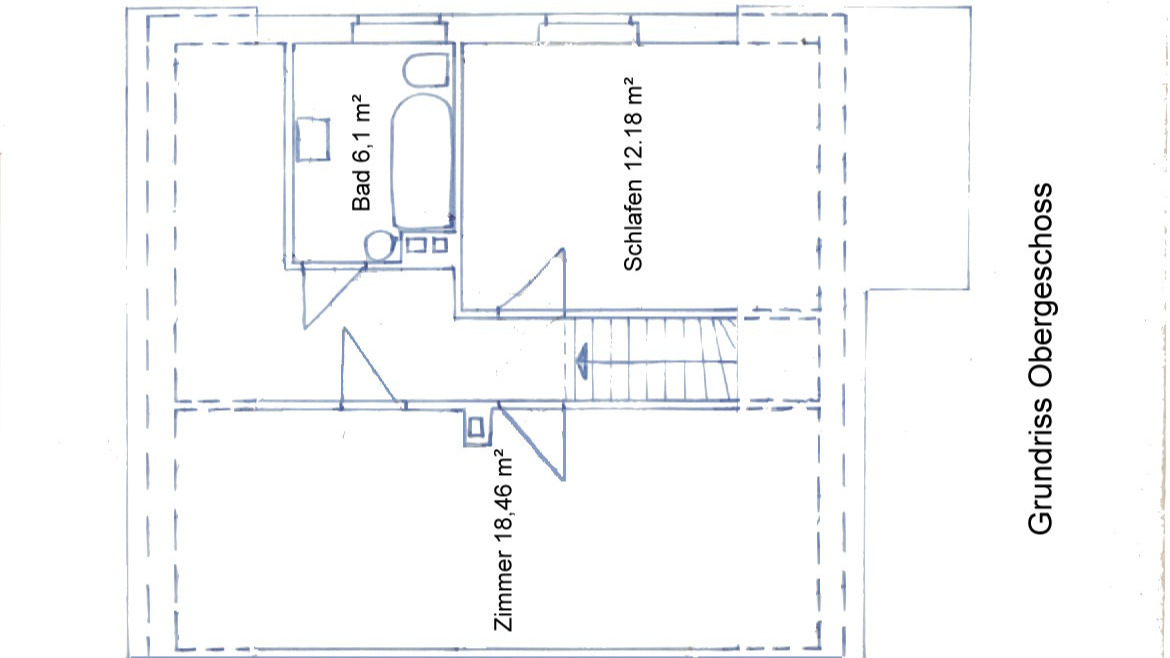
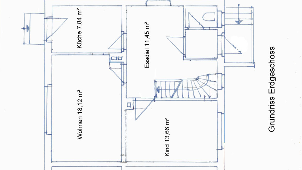
Bei dem Anwesen handelt es sich um eine 1988 gebaute Doppelhaushälfte, welche ländlich im Grünen, inmitten der Oberlausitzer Hügellandschaft liegt. Vom Haus bietet sich ein Ausblick in die Natur. Es befindet sich in einem guten Zustand, macht einen gepflegten Eindruck, ist nach Erwerb sofort nutzbar und wird teilweise möbliert verkauft. Erholsame Momente sind auf dem schönen Grundstück und auf der gemütlichen Außenterrasse garantiert. Das Bad im Obergeschoss verfügt über eine Wanne, Dusche und WC, im Erdgeschoss ist ein Gäste-WC. Die Fußböden sind überwiegend mit Laminat und Fliesen belegt. Im als Wohnraum nutzbaren Vollkeller ist neben anderen Räumlichkeiten eine Garage untergebracht. Eine zweite Garage befindet sich freistehend auf dem Grundstück. Im Jahr 1998 wurde die Dacheindeckung erneuert, 2009 wurde die Erdgasheizung mit einer neuen Brennwerttherme bestückt, 2015 der Eingangsbereich umbaut. Die Pfefferkuchenstadt Pulsnitz verfügt über eine ausgewogene Infrastruktur, alle Versorgungseinrichtungen sowie die Schule sind schnell erreichbar. Gute Verkehrsanbindung über Bus nach Dresden und den umliegenden Orten sowie zur Autobahn A 4 ca. 5 Minuten. Der S-Bahnanschluss Pulsnitz ist in ca. 15 min fußläufig erreichbar.

Medien: Strom, Wasser, Abwasser, Erdgas

Größe: ca. 500 m² Grundstück, ca. 100 m² Wohnfläche, Vollkeller,

Energieausweis:
Bedarfsausweis; Versorgung/Energie: Erdgas H
Kennwert: 139 kwh/(m²/a), Klasse E; Bj. Gebäude:1988, Bj. Anlagentechnik 2009

Wir möchten darauf hinweisen, dass die Provision für den Erwerb des Grundstückes nicht im Kaufpreis enthalten ist. Diese tragen der Käufer und der Verkäufer mit jeweils 3,57% vom Kaufpreis inkl. MwSt. Sie ist am Tage des notariellen Kaufvertragsabschlusses an den Makler zur Zahlung fällig. Für die Richtigkeit der Angaben zum Objekt kann keine Garantie übernommen werden. Diese beruhen auf Auskünften des Verkäufers. Einen Zwischenverkauf müssen wir uns vorbehalten.

Immobilienanfrage

Ihre Daten werden gemäß der Datenschutzbestimmungen erhoben und verarbeitet.
* Pflichtfelder