Loading...

wunderschönes Einfamilienhaus auch als Mehrgenerationenhaus nutzbar --verkauft--

01904 Steinigtwolmsdorf
Kaufpreis: 175.000 €

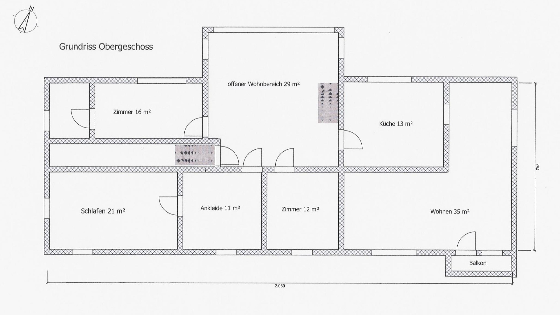
Bei dem Anwesen handelt es sich um eine Immobilie aus dem Jahr 1883 welche durch Anbauten erweitert und in den Jahren nach 1990 saniert und modernisiert wurde. Es liegt absolut ruhig am Rande des Ortes mit Fernsicht über die schöne Landschaft der Oberlausitz. Das Haus wurde mit Liebe zum Detail umgestaltet und strahlt viel Gemütlichkeit aus. Es kann auch als Mehrgenerationenhaus genutzt werden da es über zwei nicht komplett getrennte Wohnbereiche verfügt. In den Jahren der Modernisierung wurden unter anderem die folgenden Arbeiten ausgeführt: Einbau von Fenstern; Badneubau mit Wanne und ebenerdiger Dusche und eines zweiten kleinen Bades mit Wanne; Einbau einer Ölheizung; Einbau eines Kamines; großteils Erneuerung der Elektroinstallation; zwei WC`s; Anbau einer wunderschönen geschlossenen Loggia mit Fußbodenheizung; Anbau eines Balkons zur Hofseite. Das Haus verfügt über einen Teilkeller und wird großteils möbliert verkauft. Auf dem Grundstück befindet sich weiterhin ein Werkstatt- und Garagenkomplex. Bei Bedarf kann möglicherweise ein Teil des Grundstückes ausgegliedert und nach Genehmigungsverfahren als Bauland genutzt werden. Anzumerken ist noch, dass Fördermittel zum Einbau eines neuen Heizsystems beantragt und bewilligt wurden. Was für größere Interessenten anzumerken wäre ist die Baujahrbedingte unterschiedliche Raumhöhe von 2,10 bis 2,30 m. Der Dachboden ist ausbaufähig und zu einem kleinen Teil schon ausgebautSteinigtwolmsdorf gehört zur Gemeinde Neukirch/Lausitz, ist ein staatlich anerkannter Erholungsort und liegt im Südosten des Bundeslandes Sachsen. Es gehört zum Landkreis Bautzen und liegt eingebettet zwischen zwei Bergzügen des Oberlausitzer Berglandes am Fuße Valtenberges. Alle Versorgungseinrichtungen sowie Schule und Kindergarten sind gut erreichbar. Es besteht eine gute Verkehrsanbindung über Bus und Bahn zu den umliegenden Ortschaften. Die ca. 13 km nördlich vorbeiführende Autobahn A 4 ist über den Autobahnzubringer zur Anschlussstelle Salzenforst erreichbar. Der Flughafen Dresden ist 40 Autominuten entfernt. Neukirch liegt direkt an der B 98, die an die A 4-Anschlussstelle Burkau führt.

Medien:
Strom, Wasser, Abwasser, Telefon, Satanlage, Glasfaserkabel, Brunnen

Größe:
ca. 1780 m² Grundstück, ca. 240 m² Wohnfläche,

Energieausweis:
Bedarfsausweis; Versorgung/Energie: Heizöl
Kennwert: 240 kwh/(m²/a); Klasse G; Bj. Gebäude:1883, Bj. Anlagentechnik: 1994

Wir möchten darauf hinweisen, dass die Provision für den Erwerb des Grundstückes nicht im Kaufpreis enthalten ist. Diese tragen der Käufer und der Verkäufer mit jeweils 3,57% vom Kaufpreis inkl. MwSt. Sie ist am Tage des notariellen Kaufvertragsabschlusses an den Makler zur Zahlung fällig. Für die Richtigkeit der Angaben zum Objekt kann keine Garantie übernommen werden. Diese beruhen auf Auskünften des Verkäufers. Einen Zwischenverkauf müssen wir uns vorbehalten.

Immobilienanfrage

Ihre Daten werden gemäß der Datenschutzbestimmungen erhoben und verarbeitet.
* Pflichtfelder